REQUEST A TOUR If you would like to see this home without being there in person, select the "Virtual Tour" option and your agent will contact you to discuss available opportunities.
In-PersonVirtual Tour

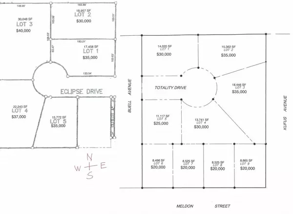
$ 35,000
Est. payment /mo
Active
Lot 1 Eclipse Drive Ravenna, NE 68869
UPDATED:
Key Details
Property Type Vacant Land
Sub Type RESIDENTIAL LOT
Listing Status Active
Purchase Type For Sale
MLS Listing ID 20210916
Tax Year 2021
Property Sub-Type RESIDENTIAL LOT
Property Description
Fourteen new lots ready for construction. First 5 lots sold gets a 20% discount or maximum of $5,000 off. These lots are near the school and parks. Quiet cul-de-sac with no neighbors to the north. Possible lot price reduction based on proposed building plans.
Location
State NE
Area Ravenna
Zoning Residential
Direction NW Ravenna, from Grand Ave turn west on Meldon St to Buell Ave, then west on Eclipse Drive
Building
Sewer City
Water City
Schools
Elementary Schools Ravenna
Middle Schools Ravenna
School District Ravenna
Listed by RAI of Nebraska
GET MORE INFORMATION
We respect your privacy! Your information WiLL NOT BESHARED,SOLD, or REMTED to anyone, for any reasonoutside the course of normalreal ostate exchange,Bysubmitting, you agree to our Terms of Use and PrlvacyPolicy.

Dawn Thompson
Broker Associate | License ID: 20160398
+1(308) 830-2835 | dawn.thompson@exprealty.com